DESCONTEXTUALIZACIÓN Y ESCALA.
Descontextualización de la tipología (residencial unifamiliar) dominante en el entorno y consecución de la escala óptima del objeto para no perder la relación entre el usuario y el edificio.
Estos son los dos objetivos que el proyecto pretende conseguir . El primero surge de la propuesta por parte del cliente para la obtención de una vivienda fuera del estándar pre-existente en la localización del solar, con vivienda unifamiliares adosadas siguiendo el esquema tradicional de retranqueo a fachada, patio posterior y distribución tipo “pasillo”. La vivienda tendría que erguirse fluida y dinámica (acogiéndonos a la tipología de vivienda unifamiliar aislada).
El segundo, derivada de la pérdida de escala por la descontextualización que se plantea para la consecución del primero.
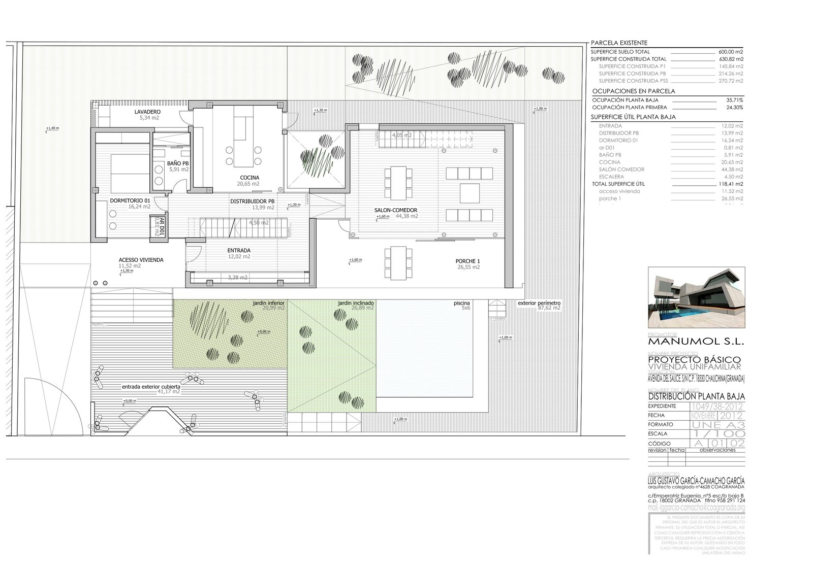
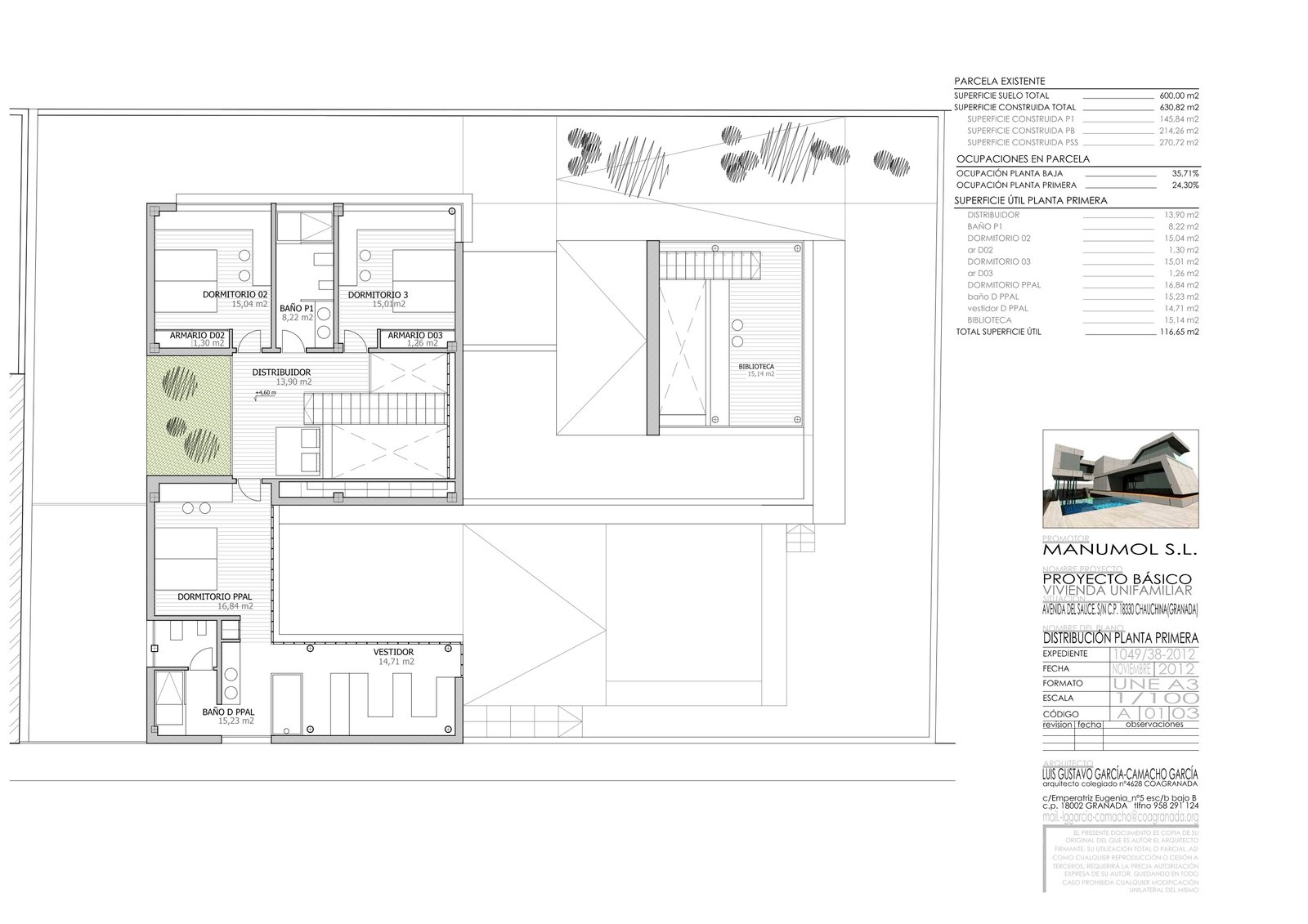
La vivienda, se distribuye en dos plantas sobre rasante y uno por debajo de éste. Desde el acceso, la vivienda “acoge” a sus usuarios acompañándolos hasta su entrada mediante un volumen que se separa del principal, y desde el cual se puede apreciar el jardín anterior entendido como una prolongación de las estancias interiores.
Este juego volumétrico hace posible la creación de espacios conmensurables para los usuarios, creando toda una suerte de jardines con diferentes grados de privacidad.