Rehabilitación de dos viviendas

Albaycín, Granada

RECUPERACIÓN DE PARCELACIÓN HISTÓRICA

En el barrio del Albaycín, la secuencia de “hueco-macizo” en la configuración de las manzanas que conforman su imagen, se convierte en toda una suerte de relaciones entre propiedades.


En algunos casos, estas relaciones nos hablan sobre lo acontecido a lo largo de la vida de los edificios, como fiel reflejo de los cambios en las vidas de sus moradores. Estos aspectos se refuerzan en ámbitos en los que el planeamiento urbanístico municipal les otorga mención especial por la riqueza de sus valores, al no poder actuar (en una gran mayoría de los casos), con la libertad que se pudiera adquirir en otros.

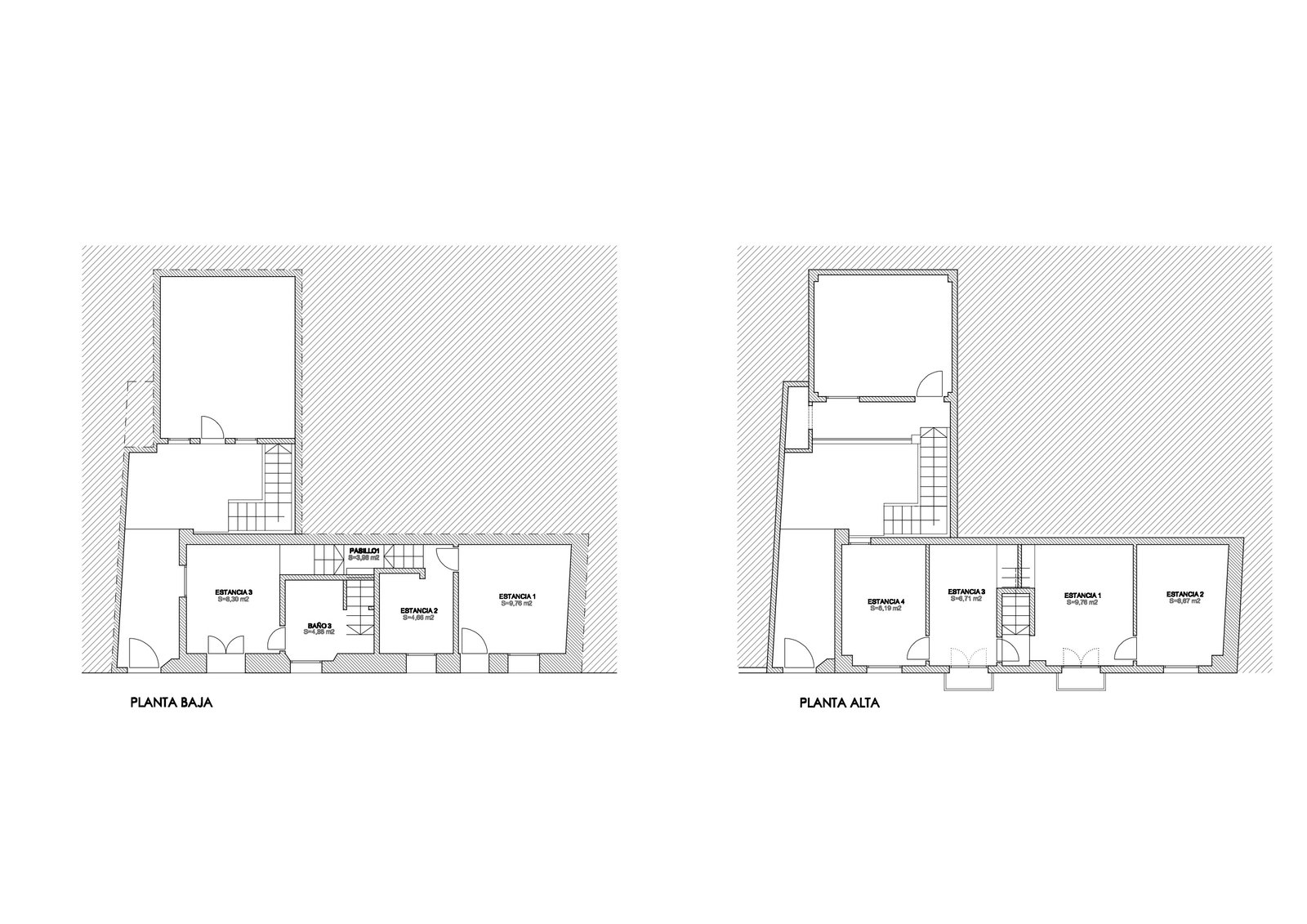
Este proyecto nace como la rehabilitación de 1 vivienda. Pero tras el análisis de lo existente (y a veces no tan evidente), la propuesta deriva en la recuperación de 2 viviendas originarias y preexistentes a las modificaciones que los inmuebles sufrieron a lo largo de su historia.

Dada la calificación que el PEPRI ALBAYCIN otorga a este suelo, y debido a que éste tan sólo contempla una única parcela urbanística, para la consecución de la materialización de nuestra propuesta (rehabilitación de 2 viviendas), se necesitará demostrar que, en origen, el suelo en donde se enclava el inmueble esta compuesto de dos parcela urbanísticas y, por lo tanto, ambas susceptibles del uso pormenorizado que el plan especial le otorga.