Edificio de apartamentos turísticos

Albuñol

El establecimiento de apartamentos turísticos estará compuesto de dos edificaciones. Una de ellas está situada sobre solar en c/Constitución 19 (175,03 m2) calificado urbanísticamente de acuerdo a las NN.SS. de Albuñol como equipamiento (E). El segundo inmueble, sito en c/28 de Febrero S/N (41,74m2) lo está con uso residencial plurifamiliar extensivo. Éste último (R.P.E.) es compatible con el primero (E->RS), atendiendo a la compatibilidad de usos dispuesta en el “artículo 6: Usos Compatibles”, del “Capítulo VI: Edificación y usos”, de las anteriormente citadas NN.SS.

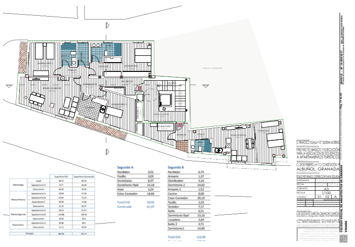
Presenta la edificación objeto de la actividad, con fachada a c/Constitución nº19, el acceso a al establecimiento. Un nivel inferior se encuentra el mostrador de recepción y el estar común desde donde se distribuye a las distintas unidades de alojamiento a través de núcleo de escaleras y ascensor. La planta primera se encuentra distribuida en tres apartamentos (A, B y C) y la segunda en dos (A y B). En la planta tercera se encuentra una unidad con terraza adaptada a personas con discapacidad.